Mietobjekte in und bei Brandenburg an der Havel

Vermietungen provisionsfrei. - Auskunft / Besichtigung: 0151/561 642 09

Mietwohnungen: Alte Potsdamer Str. 24, 14776 Brandenburg

Außenansicht – Alte Potsdamer Straße 24 (Ansicht 1)
Außenansicht – Alte Potsdamer Straße 24 (Ansicht 2)

Die Wohnungen in der Alten Potsdamer Straße 24 liegen in verkehrsberuhigter Lage, in unmittelbarer Nähe des Realkauf- und LIDL‑Einkaufszentrums und nahe beim Hauptbahnhof. Vor dem Haus befinden sich ausreichend Parkplätze. Die Straßenfront ist mit altem Baumbestand besetzt, die Rückseite grenzt an einen großen Garten.

Außenansicht – Alte Potsdamer Straße 24 (Ansicht 3)
Außenansicht – Alte Potsdamer Straße 24 (Ansicht 4)
Grundriss – Erdgeschoss

Erdgeschoss = 80 m²

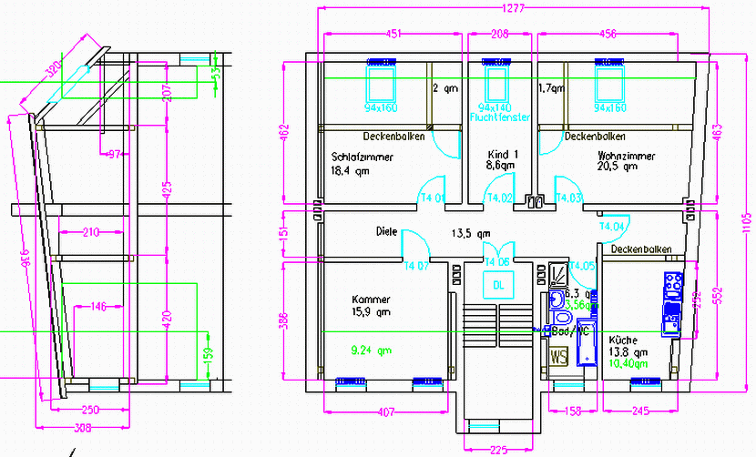
Grundriss – Obergeschosse

Obergeschosse = 102–105 m²

Grundriss – Dachgeschoss

Zu jeder Wohnung wird ohne Berechnung und ohne Zusicherung besonderer Eigenschaften ein über eigenes Vorhängeschloss verschließbarer Kellerraum zur Verfügung gestellt (mit Beleuchtung und Steckdose; Abrechnung über den Wohnungszähler). Gaszähler und Elektrozähler je Wohnung befinden sich im allgemein zugänglichen Keller. Außerdem gehört zu jeder Wohnung ohne Mehrpreis eine Gartenparzelle von 64 m².

Alle Wohnungen haben Vorrüstungen für Elektroherd (240 V, einphasig/16 A), Geschirrspülmaschine, Waschmaschine und 5‑Liter‑Elektroboiler unter der Spüle. Bäder sind bis Türhöhe (ca. 2,2 m) gefliest, Böden gefliest. In den Küchen sind die Installationswände bis ca. 1,5 m gefliest, die Böden mit PVC belegt. Wohnräume mit Teppichboden oder Laminat. Wände standardmäßig mit Raufaser weiß. Die Wohnung im Hochparterre hat an der Straßenfront elektrisch betriebene Rollläden.

Aktuelle Wohnungsangebote

EG
1. OG
2. OG
3. OG
DG

Heizkosten entstehen als Gasverbrauch, da jede Wohnung über eine eigene Gas-/Warmwasser‑Therme mit separatem Gaszähler verfügt. Umlagefähige Nebenkosten: Versicherungen, Müll, Frisch‑/Abwasser (nach Zählern in der Wohnung), Hauswart (Mülltonnen, Treppenhaus‑/Hofreinigung), städtische Anliegerkosten. Der anfängliche Nebenkostenvorschuss beträgt erfahrungsgemäß ca. 1,50 €/m² und wird jährlich exakt abgerechnet.

Keine Provision. Kaution: drei Monatskaltmieten (gesetzliche Ratenzahlung möglich). Besichtigungstermine bitte unter 0151 / 56 16 42 09 vereinbaren.